Equipo desinfección Poolstyle Nano Tech UV-C
Un sistema desinfectante por ultravioleta, realiza la función germicida potente que neutraliza virus, algas y patógenos infecciosos que alteran el agua de nuestra piscina y estanques. El sistema ultravioleta gracias a la capacidad de longitud de onda destruye el ADN de estos microorganismos evitando así la propagación dentro del agua, filtro y así evitar posibles enfermedades. La tecnología ultravioleta es un sistema no químico para conseguir esta función. Si incorporamos este método en nuestro equipo y esquema de piscina, podremos tener el agua con un 70 o 80% menos de productos químicos, ganando en salud, dinero y mantenimiento.
Agua más natural con menos productos químicos
Con el tratamiento desinfectante Poolstyle NanoTech UV-C conseguimos desinfectar el agua de la piscina disminuyendo el consumo de cloro en un 70%, evitando así la propagación de subproductos , cloraminas en crecimiento y residuos infecciosos. Con el diseño compacto y fácil de instalar podremos tenerlo instalado en pocas horas sin demasiado esfuerzo. Este sistema combina todos estos beneficios y lo notaremos al instante sobre todo en la piel de nuestros pequeños en casa.
Otra ventaja del equipo ultravioleta Poolstyle NanoTech, es amigable con el medioambiente ya que evitamos las dosis masivas de cloro en la piscina durante la época de más uso provocando altas cantidades contaminantes en el agua tanto evaporada como residual, además de la que nuestro cuerpo puede absorver.
Un enfoque sin químicos que harán que nuestra ropa y material de piscina note el cambio, haciendo que el agua se vea más cristalina, con menos elementos turbios en suspensión.


Dimensiones de instalación del ultravioleta Poolstyle NanoTech UV-C
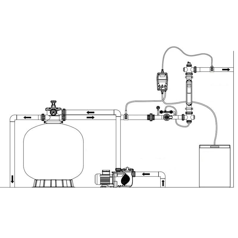
En el siguiente dibujo, podemos ver todas las medidas del equipo. Las dimensiones están indicadas en milímetros (mm). La instalación se puede realizar tanto en posición horizontal como vertical.
Poolstyle Nano Tech UV-C. Protege la piscina contra infecciones

Las mejores ventajas desinfectantes para toda la familia
Existen múltiples formas de tener agua desinfectada en nuestra piscina, con métodos que pueden ser tanto químicos como alternativas de espectro lumínico, un germicida ultravioleta o sistemas productores de cloro procedentes del Cloruro de Sodio (NaCl) que liberan el Cloro al agua realizando la función desinfectante que muchos conocemos.
La alternativa más limpia y natural es la lámpara ultravioleta Poolstyle NanoTech UV-C que protege a toda la familia de los organismos infecciosos de nuestra piscina, utilizando la luz de espectro ultravioleta para eliminarlos. Es muy recomendable para evitar que los más pequeños de la familia tengan problemas de piel , ojos irritados, picores….haciendo que la salud con el tiempo lo agradezca.
Máxima longitud de onda para una desinfección superior
Con una longitud de onda de 253,7nm el equipo Poolstyle NanoTech consigue ser un germicida muy potente con lámpara de 75W. Destruye completamente el ADN de bacterias, protozoos, virus, hongos y todo tipo de patógenos, evitando la propagación para volver a crecer y desarrollarse.

Resumen técnico del equipo Poolstyle Nano Tech UV-C
Tamaño máximo de la piscina: 75 m³
Potencia de la lámpara: 110W
Consumo : 75W
Presión de trabajo: 3 bar
Vida de la lámpara: 9.000 horas
Intensidad máxima: 0,82A- 120V – 0,38A -240V
Caudal máximo: 25 m³/hora
Conexiones : 50mm / 63mm
Longitud de onda: 253,7nm















Valoraciones
No hay valoraciones aún.